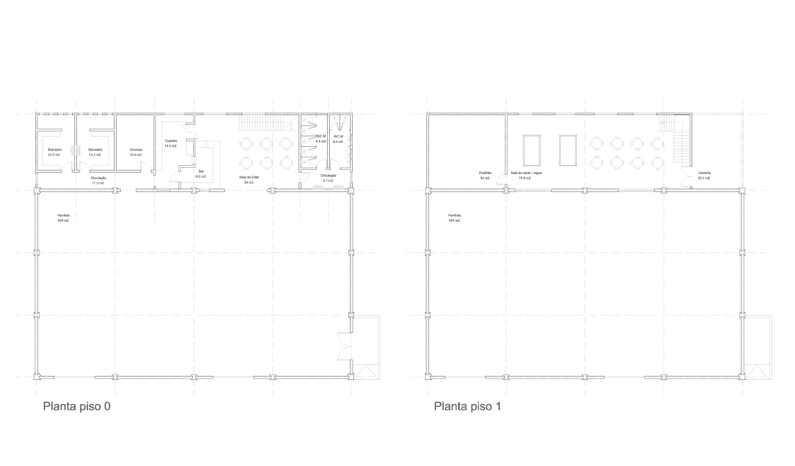
Projecto de Alterações para Pavilhão, Turcifal, Torres VedrasTorresVedras

 

      INICIO A EMPRESA SERVIÇOS PROJECTOS / OBRAS  

 

 

 
 

 

urbanarq - arquitectura e construção

 
de: Mário Carvalho Figueiredo, unipessoal Lda Sede: Rua de Mormugão N.24 3ºDrt - 2900/504 Setúbal
NIF: 510263291 Cap. Social 34.000€       geral.urbanarq@gmail.com
Alvará de Construção Cat.2 N. xxxxxxxx 968861047 265401052